|
Loistava mahdollisuus näyttävään toimintaan
Liiketoimintaympäristö sijaitsee näkyvästi Kehä III:n varrella. Tänne on helppo tulla. Asiakkaiden näkökulmasta paikka on loistava. Lentokentän läheisyys, logistiikkapalvelut ja hyvät yhteydet takaavat toimivat tavarankuljetukset. Julkinen liikenne sujuu ja yhä kehittyy.
Alueen yritykset voivat omin valomainoksin hyödyntää hyvää näkyvyyttä vilkkaan Kehä III:n suuntaan tai alueella asioiville. Lisäksi
alueella on erillinen ledivalomainostaulu, jolla yritykset voivat hankkia lisänäkyvyyttä.
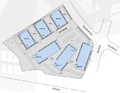
Premium Park
-
yrityspuisto avautuu Varsikujan molemmille puolille. Kokonaisuus on arkkitehtuuriltaan yhtenäinen
ja tyylikäs. Suunnitelmassa hyödynnetään tontin korkeuseroja siten, että tilat on sijoitettu toimivasti
kahteen kerrokseen ja sisäänajo molempiin kerroksiin tapahtuu suoraan pihalta. Tontin kokonais-
pinta-ala on noin 23 000 m2.
|

|